Please choose region and language

close

Germany, Austria, Switzerland

International

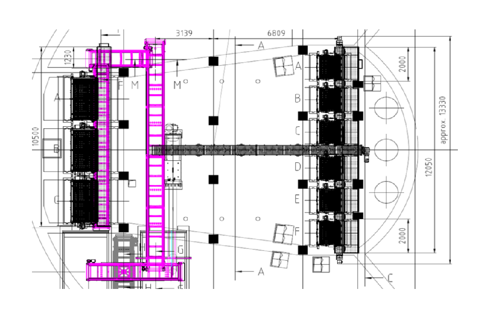
Passavant® Multi-Rake Bar Screens KUR

Le Havre, France

Passavant® Multi-Rake Bar Screens KUR for the Wastewater Treatment Plant in Le Havre, France

Situation

The old headworks station of the wastewater treatment plant in the city of Le Havre was regularly flooded because the cleaning capacity of the previously installed bar screens was not sufficient to handle the amount during storm water events. It had become necessary to renew the station with screening machines at a higher cleaning frequency. At the same time, the screenings transport system and the control unit were to be replaced.

Solution

Delivery of 3 KUR-HD and 6 KUR-C, as well as 4 belt conveyors and 3 spiral conveyors with the associated control unit. For optimal cleaning with space-saving 90° installation, the screens were equipped with automatic discharge chutes. In addition, the coarse screens can be lifted by hydraulic cylinders in case of an accident in order to release the channel in case of too high occupancy. Due to very tight installation conditions, the modular design of the screens was a great advantage. The bottom section, intermediate sections and bar rack were pre-assembled with inserted chains and cleaner elements and moved to their respective installation positions via openings in the roof. Subsequently, only the drive units had to be mounted.

Since commissioning, the new raking system with Multi-Rake Bar Screens from Aqseptence Group has been running without any problems and to everyone's fullest satisfaction. 

Advantages

  • Short cleaning cycles due to revolving chain with 12 cleaning elements
  • No sprocket wheels in the submerged area
  • Completely hygiene-enclosed system
  • Modular design

Technical Data

Passavant®-Geiger® Multi Rake Bar Screen with accessories
 

Design sizes Coarse screen Fine screen
Type KUR-HD KUR-C
Quantity 3 6
Channel width 2.5 m 1.4 m
Installation depth 9.8 m 10.2 m
Max. inflow 6,000 l/s 1,200 l/s
Gap width 35 mm 10 mm
Number of  rakes 12 12

Downloads

Are you interested in more details or do you have further requests?

Therefore, please get in touch via our general contact form and refer to this specific case study.

vertical_align_top